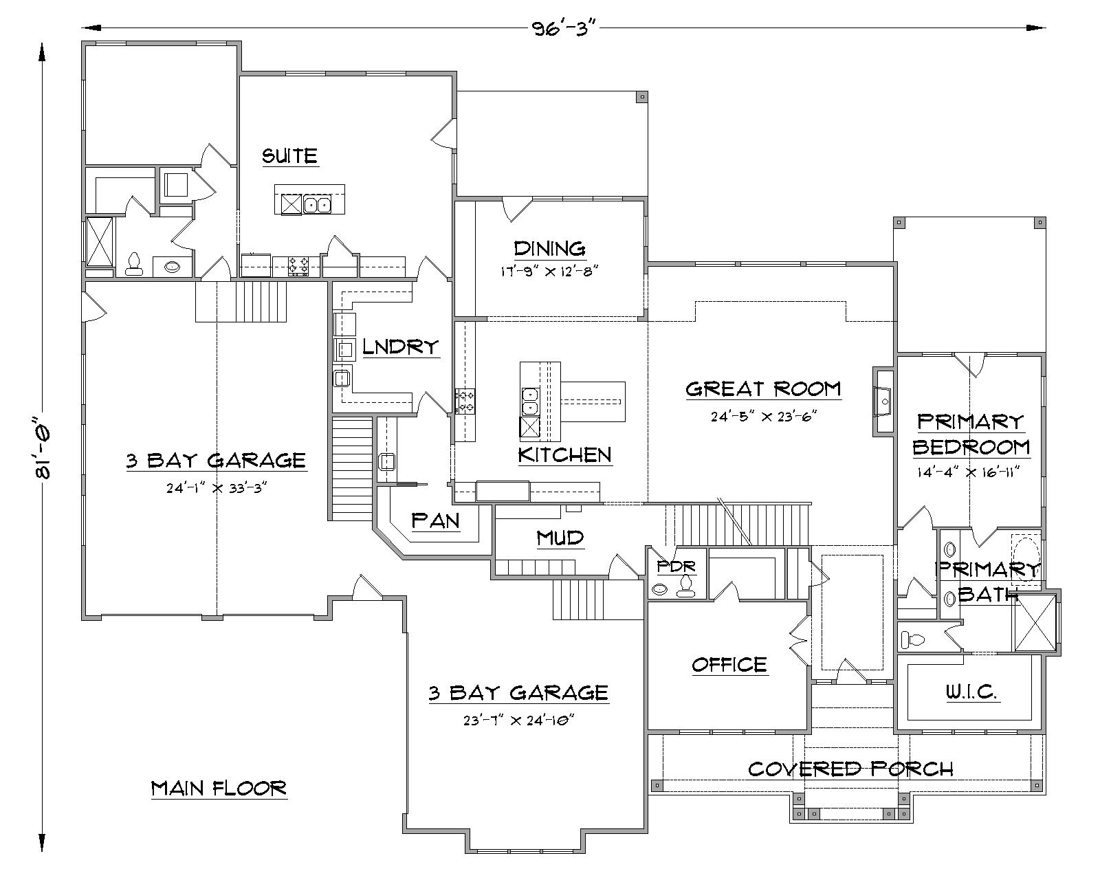
Alpine | $6,310.00
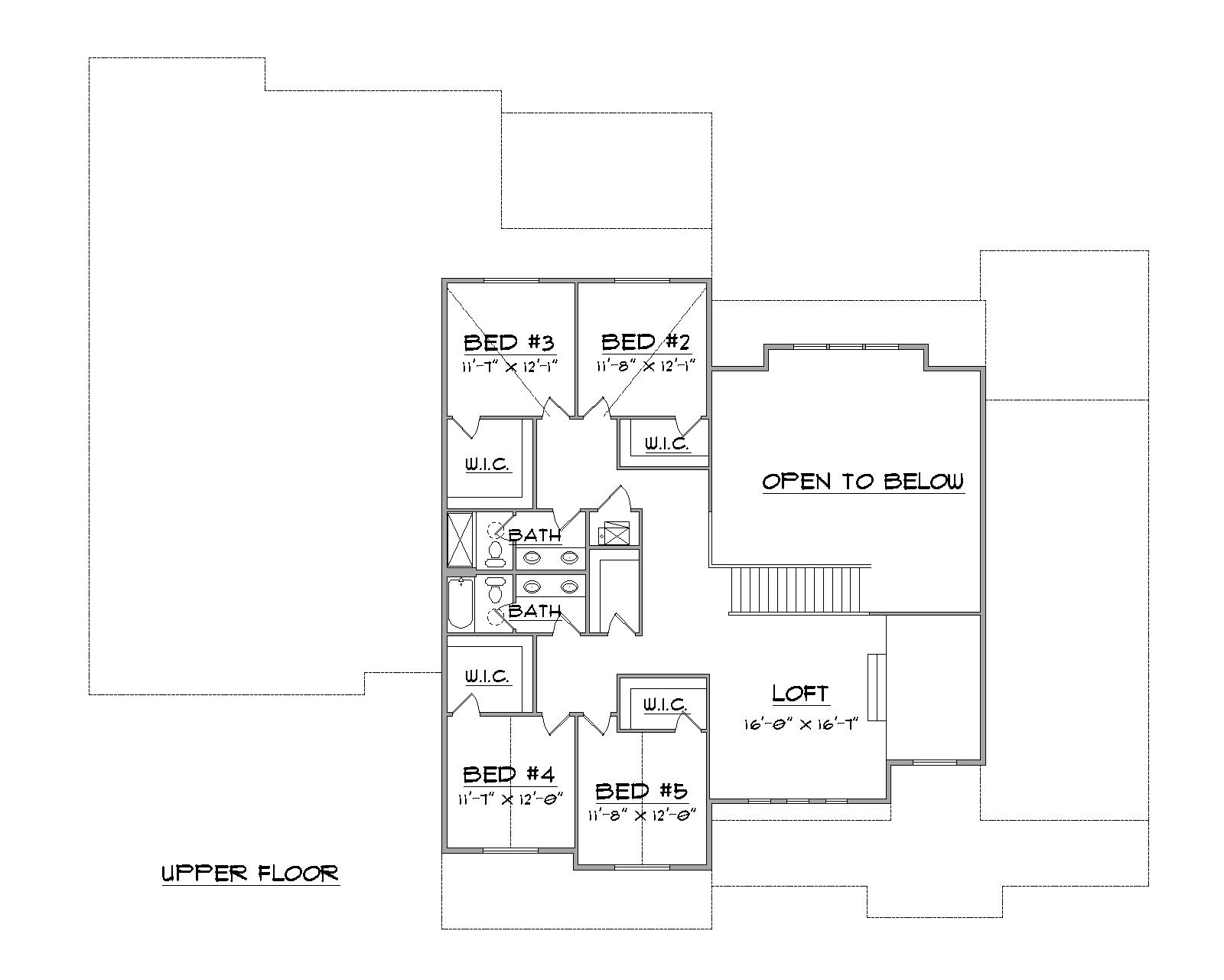
The Alpine is a 7-bedroom, 5.5-bathroom residence with 8,413 square feet of beautifully crafted living space. Set against a stunning mountain backdrop, this home combines timeless architecture with modern sophistication.
The exterior features stone accents, gabled rooflines, and inviting entryways that establish its classic charm. Inside, natural light pours through beautiful windows, highlighting the dramatic ceilings and open, airy layout.
The kitchen is designed for both function and style, with professional-grade appliances, generous islands, and custom cabinetry. It connects seamlessly to the dining and living spaces, making it ideal for family gatherings or hosting guests.
A grand living room with a statement fireplace and built-in shelving anchors the heart of the home, while the serene primary suite offers a peaceful retreat with its luxurious finishes
Plan Details
| Bedrooms | 7 |
|---|---|
| Bathrooms | 5.5 |
| Garage | 3 |
| Total Sq Ft. | 8,413 |







